
Praktische en stijlvolle indeling
Zorgwoning Reest
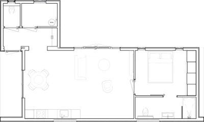
De Reest ademt ruimte dankzij een slimme indeling met het bescheiden oppervlak van 65m². De woonkamer met open keuken geeft een ruime woonervaring en met meerdere grote raampartijen geniet u van veel natuurlijk licht. Voor de buitenmens is er een directe toegang naar het terras vanuit de woonkamer, direct bij de voordeur is een separaat toilet voor gemakkelijke toegang.
Compact design, groots comfort
Wat de Reest uniek maakt, is de efficiënte benutting van elke vierkante meter. Met een oppervlakte van 65m² biedt deze woning verrassend veel leefruimte zonder in te leveren op comfort. De centrale entree fungeert als spil van de woning en biedt directe toegang tot alle vertrekken. Dankzij de strategisch geplaatste raampartijen aan drie zijden van de woonkamer baadt de leefruimte in het daglicht, wat het ruimtelijke effect extra versterkt.
Harmonie tussen binnen en buiten
De Reest is ontworpen voor liefhebbers van het buitenleven. De grote schuifpui in de woonkamer fungeert als een transparante barrière die uw terras bij de zithoek betrekt. Of het nu gaat om een zomerse lunch of een rustige ochtend met een kop koffie, de overgang naar buiten is moeiteloos. De strakke architectuur en de hoogwaardige afwerking van de gevels zorgen ervoor dat de woning een moderne, maar natuurlijke aanvulling vormt op uw perceel.
Praktisch en doordacht ingedeeld
De woning beschikt over een volwaardige slaapkamer van 12m² met een en-suite badkamer voor gemakkelijke toegang. Daarnaast is er slim nagedacht over opslag: de inpandige berging biedt plaats aan al uw technische installaties en extra voorraad, terwijl het separate toilet bij de entree zorgt voor extra privacy in het slaapgedeelte van de woning.
Bekijk plattegrond
U kan de plattegrond direct bekijken of een papieren exemplaar op A3 formaat thuis ontvangen.
Thuis ontvangen











