
Onderhoudsarm rieten dak
Zorgwoning IJssel
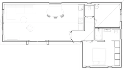
De IJssel is een prachtige L-vorm woning, die in een landelijke omgeving helemaal tot recht komt. Dankzij de keuze uit diverse kleuren steenstrips vormt de woning altijd een harmonieus geheel met het hoofdgebouw. De geheel open woonkamer en keuken van 38m² gezamenlijk, heeft deuren naar het terras voor aanvullend woonplezier.
Karakteristiek wonen onder riet
Wat direct de aandacht trekt, is de prachtige rieten kap. Dit natuurlijke materiaal geeft de IJssel een tijdloze, landelijke uitstraling die perfect opgaat in een groene omgeving. Naast de esthetische waarde biedt een rieten dak uitstekende natuurlijke isolatie; het houdt de woning heerlijk koel in de zomer en behaaglijk warm in de winter. Zo geniet u van een authentiek karakter met het comfort van nu.
Slimme L-vorm voor optimale privacy
De doordachte L-vormige architectuur van de IJssel zorgt voor een natuurlijke scheiding tussen wonen en rusten. De royale woonkamer met open keuken van 38m2 vormt het kloppende hart van de woning, terwijl de slaapvleugel met aangrenzende badkamer in de uitbouw voor extra privacy zorgt.
Ruimte voor al uw ambities
Met een totaaloppervlakte van 76m² biedt de IJssel verrassend veel praktische ruimte. Naast de riante slaapkamer van 12m² beschikt de woning over een berging van 8m². Deze ruimte is ideaal als hobbyruimte, werkplek aan huis of zelfs compacte logeerkamer.
Bekijk plattegrond
U kan de plattegrond direct bekijken of een papieren exemplaar op A3 formaat thuis ontvangen.
Thuis ontvangen











